Source: NAPLESMLS#225062655 Listing Office: DR Horton Realty SW FL LLC Showing Office: GULFSHORE GROUP
Property Overview
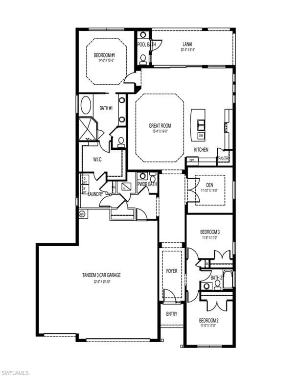
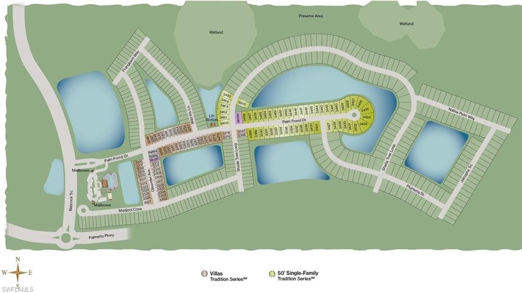
Under Construction - Introducing the Stunning Shelby Floorplan! This thoughtfully designed home offers 3 spacious bedrooms, a versatile den with elegant glass doors, and 2.5 luxurious bathrooms. Quiet/Tranquil Preserve View! Highlights include an expansive covered lanai for seamless indoor-outdoor living. A HUGE oversized tandem garage (20x30) ideal for golf cart/extra storage, a workshop, or your favorite toys. Impact-resistant windows and sliders for peace of mind and energy efficiency. High-end cabinetry paired with quartz countertops. Upgraded faucets and hardware for a refined touch. A single bowl stainless steel kitchen sink and a premium full appliance package including a tankless hot water heater. Stylish wood-look tile floor that combines beauty with durability. Whether you’re hosting guests or enjoying a quiet event at home, the Shelby floorplan delivers comfort, style, and functionality in every corner. There is also plenty of room for a future pool or fence. Palmetto Landing Community's amenities, from the inviting clubhouse (already open-available for private events) to the resort-style beach entry pool w/lap lanes, splash pad, game room w/a pool table, card tables, TV’s and fitness center, guarantee a lifestyle of leisure and entertainment. With its proximity to shopping, dining, and the vibrant Babcock Ranch lifestyle, this residence encapsulates the essence of contemporary living in prime location.Under Construction - Introducing the Stunning Shelby Floorplan! This thoughtfully designed home offers 3 spacious bedrooms, a versatile den with elegant glass doors, and 2.5 luxurious bathrooms. Quiet/Tranquil Preserve View! Highlights include an expansive covered lanai for seamless indoor-outdoor living. A HUGE oversized tandem garage (20x30) ideal for golf cart/extra storage, a workshop, or your...
All calculations are estimates and provided for informational purposes only. Actual amounts may vary.
Mortgage Calculator
Punta Gorda, Punta Gorda
Punta Gorda, Punta Gorda
...
Disclaimer:The source of this real property information is the copyrighted and proprietary database compilation of the M.L.S. of Naples, Inc. Copyright M.L.S. of Naples, Inc. All rights reserved. The accuracy of this information is not warranted or guaranteed. This information should be independently verified if any person intends to engage in a transaction in reliance upon it.